Requisitos de Montaje
Para garantizar una instalación sin contratiempos, la obra debe estar completamente finalizada y cumplir una serie de condiciones técnicas
La instalación de una cocina CUBRO requiere que la estancia esté preparada según unas condiciones específicas. Estas afectan a trabajos de albañilería, fontanería, electricidad y otros detalles constructivos. La coordinación con el profesional responsable de la obra es clave para asegurar que todo esté listo y evitar contratiempos el día del montaje.
1. Condiciones generales de la obra
Antes del montaje, la estancia debe estar:
-
Vacía
-
Limpia
-
Iluminada
-
Ventilada
-
Con espacio suficiente para trabajar con seguridad
Durante el montaje no pueden permanecer otras personas en la estancia.
2. Albañilería y acabados
Para poder instalar la cocina:
-
El suelo debe estar instalado y terminado.
-
Techos y falsos techos terminados y pintados.
- Los zócalos deben retirarse antes del montaje. El cliente deberá recolocarlos después.
-
Las paredes deben estar:
-
Revestidas
-
Escuadradas a 90º
-
Pintadas o alicatadas según el proyecto (salvo el frente de encimera)
-
Alturas mínimas de techo
Según la altura de los muebles:
-
Muebles de ↕208 cm → techo mínimo ↕210 cm
-
Muebles de ↕228 cm → techo mínimo ↕230 cm
-
Muebles de ↕248 cm → techo mínimo ↕250 cm
Paredes de pladur
-
Las paredes de pladur deben incluir refuerzo interior (DM o doble placa) si se van a colgar muebles.
.jpg?width=551&height=414&name=PXL_20250919_140607526%20(1).jpg)
-
Bandas de refuerzo de unos 20 cm de alto recomendadas según altura de los muebles:
-
De 170 a 190 cm → muebles de ↕188 cm
-
De 190 a 210 cm → muebles de ↕208 cm
-
De 210 a 230 cm → muebles de ↕228 cm
-
De 230 a 250 cm → muebles de ↕248 cm
-
-
Todos los trabajos de pintura o enyesado deben terminar al menos 48 horas antes del montaje.
Alicatado
-
Debe empezar entre 70 cm y 148,5 cm desde el suelo
-
En cocinas de gas: 20 cm adicionales
Baldas voladas
Si contratas el servicio de montaje con CUBRO, solo instalaremos baldas de dimensiones estándar, aprobadas por nuestro equipo de Diseño.
La instalación es clave para garantizar la resistencia y durabilidad de tus baldas:
-
Pared de ladrillo: la opción más recomendable. -
Pladur reforzado: válido si hay doble placa o refuerzo de DM detrás. -
Nunca instalaremos en: pladur simple, paredes huecas, desniveladas o descuadradas.
Consulta nuestra guía de instalación de baldas para más información.
3. Extractor y salida de humos
-
La salida de humos debe estar preinstalada hasta el eje de la campana.
-
El tubo debe sobresalir 8 cm del techo o pared.
-
Diámetros admitidos:
-
15 cm
-
12,5 cm
-
Indícanos el diámetro para llevar las conexiones adecuadas el día del montaje.
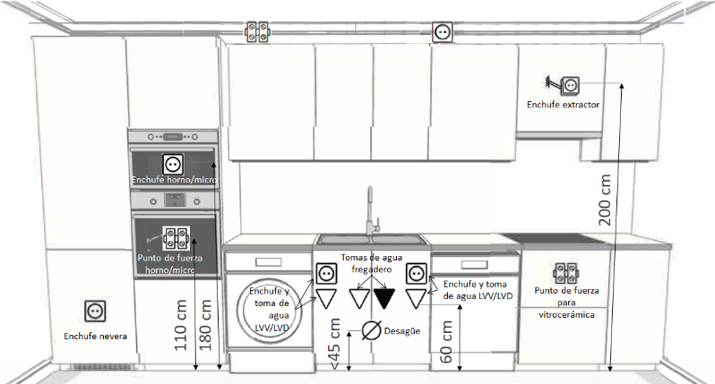
4. Fontanería
Para evitar modificaciones de última hora:
-
Llaves de escuadra centradas en el fregadero a 65 cm del suelo.
-
Desagüe PVC 40 mm hembra:
-
A menos de 45 cm del suelo
-
Con codo de 90º y 10 cm de tubo sin encolar
-
-
Conexiones de lavavajillas o lavadora:
-
Dentro del mueble fregadero o el contiguo
-
-
En fregaderos de un seno con dos electrodomésticos:
-
Desagüe adicional en pared
-
⚠️ CUBRO no realiza conexiones de gas. Consulta sobre las instalaciones de fontanería en función del tipo de encimera.
5. Electricidad
Todas las instalaciones eléctricas deben estar completamente terminadas, con embellecedores colocados.
Iluminación
-
Interruptores instalados
-
Conexión para iluminación de encimera:
-
A 200 cm del suelo
-
Con mínimo 100 cm de cable
-
-
Iluminación interior de cajones:
-
Conexión a 65 cm del suelo
-
Electrodomésticos

- Frigorífico/congelador: eje a 35 cm del suelo.
-
Lavavajillas/lavadora: 65 cm del suelo, en módulo contiguo.
-
Horno/microondas:
-
Horno alto: 110 cm del suelo.
-
Horno bajo: 65 cm del suelo.
-
Microondas alto: 180 cm del suelo.
-
⚠️ El horno debe tener línea de 3x6 mm protegida por interruptor magnetotérmico de 2x25 A.
-
-
Placa: eje a 65 cm del suelo, con 100 cm de cable.
-
⚠️ Misma protección eléctrica que el horno.
-
-
Campana extractora: 200 cm del suelo, centrada con el mueble.

6. El día del montaje
Si no se cumplen todos los requisitos y no se avisa con una semana de antelación, el montaje deberá:
-
Reprogramarse
-
Generar un coste adicional de 400 €
CUBRO hará todo lo posible por reagendar la fecha más próxima disponible.
❓ ¿Tienes dudas?
Para cualquier consulta específica sobre tu proyecto, contacta con el equipo de soporte o con tu persona de contacto en CUBRO. Es fundamental resolver cualquier duda antes del montaje para evitar incidencias.