Guía de instalación de tiras bajo encimera
Para un acabado perfecto
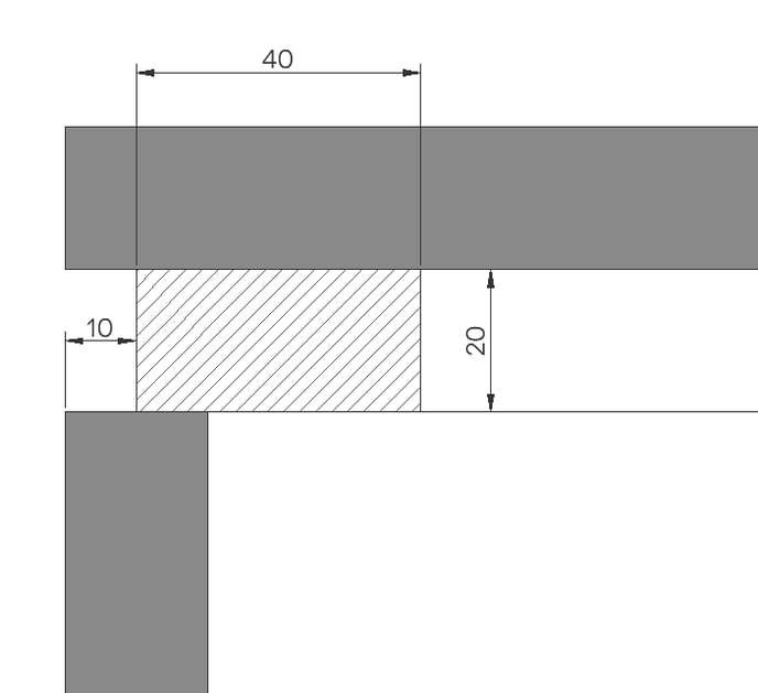
Las tiras bajo encimera (TBE) son piezas de aproximadamente 4x230cm que se disponen entre el mueble IKEA y la encimera. Su función es principalmente estética, ya que elevan ligeramente la encimera y permiten generar un pequeño vuelo respecto a los frentes.

Nuestra recomendación es montarlas retranqueadas hacia dentro de las estructuras IKEA, 1 cm con respecto a nuestros frentes, creando una línea longitudinal entre la encimera y los frentes.


Preparación
Antes de colocar las tiras, es necesario desplazar o retirar el perfil metálico que ensambla el casco de IKEA, dependiendo del tipo de mueble: mueble bajo estándar o mueble bajo con ventilación para fregadero o placa.
Mueble bajo
Una vez montados todos los muebles bajos, se deben desplazar los perfiles metálicos 5 cm hacia el interior del casco. Esto generará el espacio necesario para la instalación de las TBE.

Mueble bajo fregadero o placa
En estos casos, es necesario retirar completamente los perfiles metálicos de IKEA, ya que su presencia impediría el montaje tanto de la placa como del fregadero.

Instalación
Las TBE deben colocarse siguiendo toda la línea longitudinal del frente de la cocina, tanto por la parte frontal como por la parte posterior del conjunto de cascos.
También se deben instalar tiras perpendiculares en las uniones entre cascos, creando así una estructura sólida y continua.
Esta estructura permitirá:
-
Resolver los encastres del fregadero y la placa.
-
Garantizar un apoyo estable y uniforme para la encimera.

Las tiras se atornillan directamente al canto de los laterales de los cascos, en los puntos indicados (puntos rojos en el esquema original).
Los únicos extremos que quedarían sin fijación son los de la tira longitudinal trasera (marcados con * en el esquema). En estos puntos se deberá colocar una pequeña escuadra atornillada al casco para asegurar la unión.
Laterales
En el caso de que tengamos un lateral visto, como en el lado izquierdo planta, además de desplazar los perfiles metálicos como hemos indicado anteriormente, debemos cortar la tira por ambos extremos, para que asiente completamente por encima del perfil, que no debe eliminarse.

Esquinas
El encuentro en esquina de las tiras bajo encimera puede ser de dos maneras:
- La tira larga predominante sobre la corta, en el lateral

- Unión en inglete: se cortan ambas tiras a 45° para un encuentro más limpio y estético.
